CONCURSO 110 VIVIENDAS
«VALLADOLID»
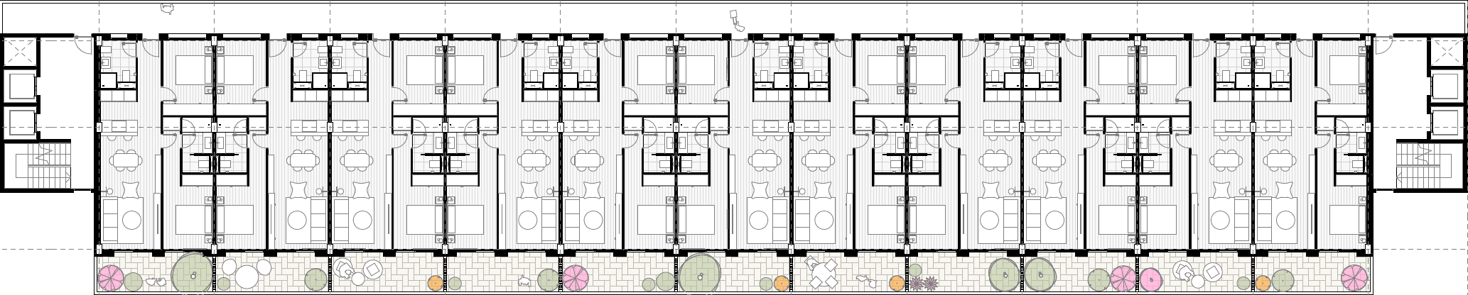
110 viviendas sociales en bloque en baja+4. La planta baja consta de una zona común destinada a gimnasio, cuarto de bicicletas y zona de coworking. Cada planta esta compuesta por módulos de viviendas de 2 dormitorios, 2 baños y cocina/salón/comedor abierto con terraza exterior. A las viviendas se acceden mediante un pasillo exterior. La planta cubierta se destina a espacio de ocio y terraza al exterior común.









