CASA RIVABELLOSA
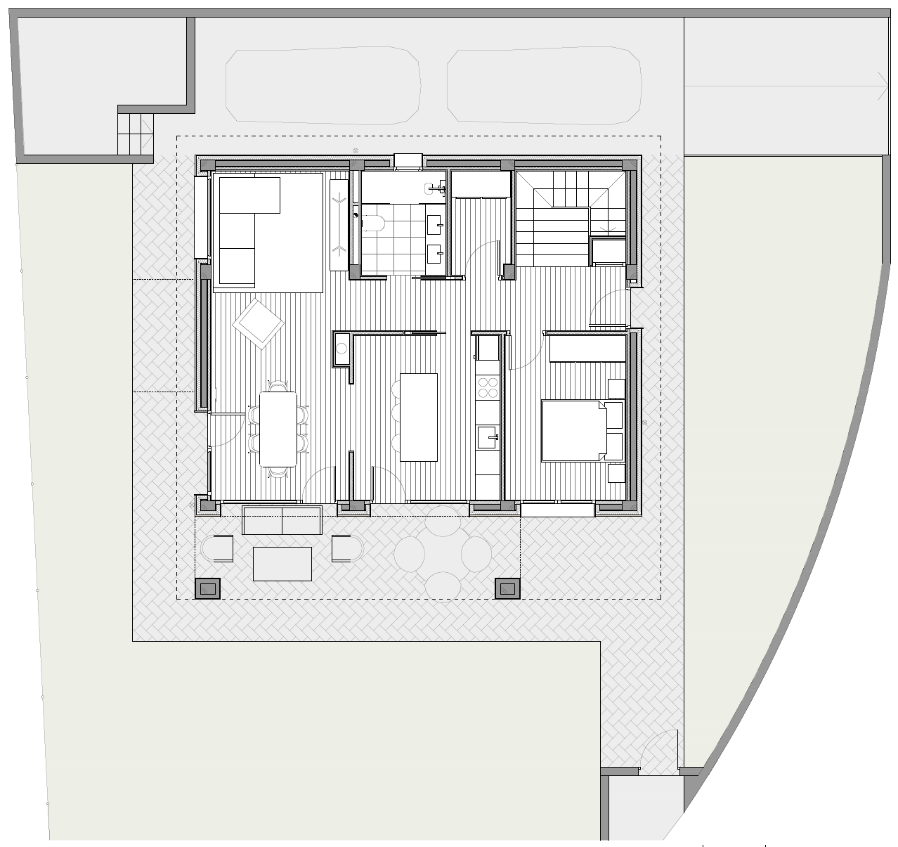
Vivienda unifamiliar aislada de 160m² útiles en parcela de 500m² distribuida en 2 plantas (b+1). Consta de 4 dormitorios, 2 baños, cocina y salón/comedor con chimenea. Diseño moderno con fachada ventilada cerámica y cubierta a 4 aguas con grandes aleros y gran porche. Garaje en zona exterior. Piscina en zona ajardinada privada. Certificación energética «A».






