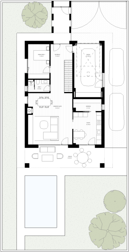
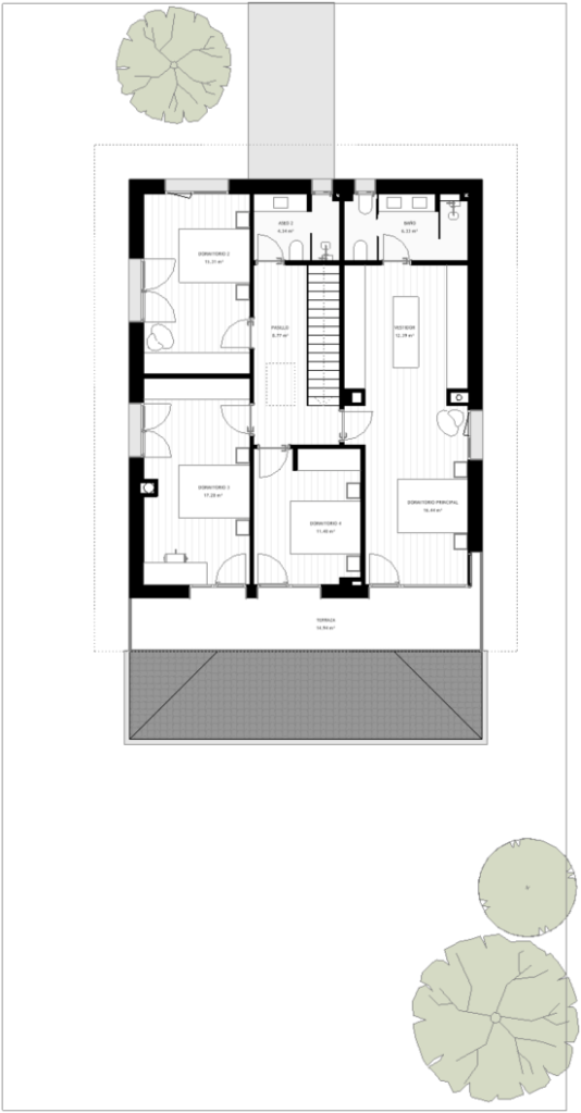
CASA ORON
Vivienda unifamiliar aislada de 212m² útiles en parcela de 500m² distribuida en 2 plantas (b+1). Consta de 5 dormitorios, 3 baños, cocina y salón/comedor con chimenea. Garaje en el interior de vivienda. Piscina en zona ajardinada privada. Certificación energética «A».






